過濾器系列
消氣過濾器
|產品介紹
消氣過濾器是流量計的輔助設備,集過濾、消氣為一體的產品。既能過濾管道中的雜質,又能排出液體中的氣體。消氣過濾器具有體積小、結構合理、堅固耐用、清洗方便等優點,是保證流量計安全工作不可或缺的輔助設備。
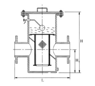
|產品結構

|產品技術參數
消氣過濾器參數材料表:殼體材質 | PP 碳鋼 不銹鋼 襯里 |
濾框濾網材質 | 不銹鋼 |
密封件材質 | 耐油石棉橡膠、金屬纏繞墊、聚四氟乙烯 |
工作溫度(℃) | -80~450 |
連接方式 | 法蘭連接、對焊連接、螺紋連接 |
公稱壓力(MPa) | 0.6~16.0 (150Lb~900Lb) |
過濾精度(目/in) | 5~800 |
消氣過濾器表格計算單位:(mm)
DN | 25 | 40 | 50 | 80 | 100 | 125 | 150 | 200 | 250 | 300 |
SIZE | 1” | 11/2” | 2” | 3” | 4” | 5” | 6” | 8” | 10” | 12” |
D1 | 76 | 108 | 108 | 159 | 219 | 273 | 325 | 377 | 426 | 478 |
L | 180 | 260 | 260 | 399 | 459 | 513 | 565 | 617 | 666 | 718 |
H | 260 | 300 | 300 | 417 | 508 | 617 | 724 | 793 | 893 | 997 |
H1 | 410 | 560 | 560 | 719 | 881 | 1079 | 1276 | 1397 | 1544 | 1739 |
H2 | 160 | 170 | 170 | 214 | 272 | 345 | 404 | 446 | 495 | 563 |
|安裝維護
|訂貨須知
1、我廠承接各種非標尺寸消氣過濾器;2、訂貨時請注明口徑、材質、壓力、過濾精度及數量等。