截油排水系列
HB-II型自動截油排水器
|產品介紹
北方寒冷地區季節溫差大,凍土層深。為防止沉砂井和排水管冬季結冰,保證罐區自動截油排水器的使用效果,安裝時將自動截油排水器的排水管平行埋在凍土層線以下,從而達到當地表結冰時而沉砂井和排水管不結冰的目的,確保自動截油排水器不受季節溫差的影響,常年有水自動排出,有油自動截留,無水自動關閉。
|產品結構


1、本產品采用無背壓的特殊設計結構,杠桿帶動閥針移動,使閥芯外壓力一致,杠桿繼續移動,針閥和閥門很靈活的一起開始排水,從而解決了減壓與排水閥不同步的現象,克服了關閉不嚴的缺點,確保灌區安全;
2、不需任何能源實現自動控制,安全、環保、經濟;
3、體積小、結構合理、無易損件、使用壽命長、不需補充水,使用維修方便;
4、有水時自動開啟,天旱無水時自動關閉,有油水混合物時實行油水自動分離,本設備24小時全天候工作,減輕了操作工下雨時開閥、天晴關閥的工作壓力,杜絕了跑油事故的發生。
|產品技術參數
1、公稱通徑:DN200、DN250、DN300、DN350、DN400、DN5002、公稱壓力:≤0.25MPa
3、法蘭標準:HG20592-2009
4、適用介質密度:≤970kg/m3
型號 | 通徑(mm) | 壓力(MPa) | D | L | H |
HB-200-11 | DN200 | PN0.25 | 219 | 880 | 520 |
HB-250-11 | DN250 | PN0.25 | 273 | 930 | 520 |
HB-300-11 | DN300 | PN0.25 | 325 | 980 | 520 |
HB-350-11 | DN350 | PN0.25 | 377 | 1030 | 520 |
HB-400-11 | DN400 | PN0.25 | 426 | 1080 | 620 |
HB-500-11 | DN500 | PN0.25 | 530 | 1281 | 720 |
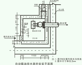
|安裝維護
本產品直接安裝在油品罐區沉砂井內,直接與排水管水平連接,詳細尺寸參見中石化工業通用圖“總圖運輸通用圖集”SH104—2006《油品灌區水封閥安裝圖》。1、打開包裝,按裝箱單清點設備;
2、先將出水筒法蘭與排水管水平法蘭連接:
3、將浮筒連接在水筒上;
4、安裝閥芯和杠桿連接浮筒與杠桿之間的撐桿;
5、安裝配重后即行投入使用;
6、請按以下視圖安裝:


注意事項
1、油品罐區內通往沉砂井的排水溝必須設有隔柵,不得讓雜物流入沉砂井內,造成排水閥失靈。
2、安裝和清除沉砂井內的雜物時,工作人員上下要用爬梯,不得用浮筒作爬梯,否則會造成截油排水器閥門的泄露和杠桿的折彎或折斷。
3、要定時清除排水溝內的雜物和沉積物,否側會影響排水器閥的開啟和關閉。
4、要及時回收沉砂井內的積油。
5、本設備出廠前已調試好,不要自行調試。按照步驟組裝即可使用。
6、截油排水器的出水筒與排水管的連接必須保持水平安裝。
常見故障處理方法
故障現象 | 故障原因 | 處理方法 |
排水閥芯關閉不嚴,少量帶油 | 閥芯有雜物卡住 | 及時清除雜物 |
密封圈變形 | 更換密封圈 | |
排水閥芯打不開,不能排水 | 浮筒與杠桿連接脫落 | 恢復杠桿與浮筒連接栓 |
用浮筒作爬梯使杠桿折彎、折斷 | 恢復杠桿 | |
配重位置移動 | 重新調整配重 | |
浮筒泄露 | 更換浮筒 | |
沉砂井中沉積物過多 | 清除雜物 |